래크와 피니언 도면 마지막으로 표면 거칠기를 입력할 차례다.


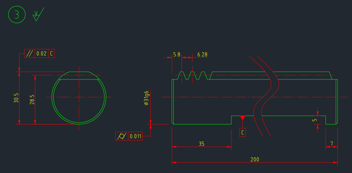
42mm 지름을 갖는 원통면은 피니언보다 형상이 커서 끼워맞춤이 아닌 곳이다. 다른 부품과 맞닿지 않으므로 w 거칠기를 준다.
옆면은 다른 부품이 끼워져 맞닿기 때문에 x 거칠기를 주었다.

본체의 옆면 또한 다른 부품과 맞닿기 때문에 x 거칠기를 준다.

각 부분들은 래크가 운동하면서 맞닿는 부분이므로 y 거칠기를 준다.


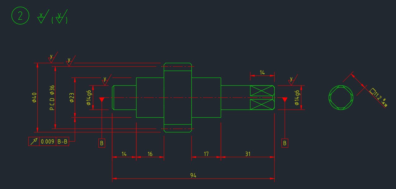
이끝원 부분과 피치원 부분은 y 거칠기로 준다.
14mm 축은 부시와 결합하고 안에서 회전하므로 y 거칠기로 준다.

래크는 전체적으로 결합하여 운동하는 부품으로 전체 y 거칠기로 주고 부품에 따로 작성하지 않아도 된다.

각 옆면과 윗면은 래크가 이동하며 맞닿는 부분으로 y 거칠기, 구멍은 w 거칠기를 준다.
이렇게 모든 부품의 거칠기 표시까지 완료했다.
외전으로, 피니언 거칠기를 기입할 때 치수선에 걸쳐 있는 걸 끊는 기능에 대해 작성하겠다.

이렇게 거칠기 기호와 치수선이 겹쳐서 도면이 깔끔하지 못하다.
이 때, 치수 끊기 기능을 사용하여 정리해줄 수 있다.


해당 아이콘을 클릭하면 치수 끊기를 할 수 있다.
먼저 끊을 치수선을 선택하고, 이후에 끊을 기준이 되는 문자나 도형을 선택하면 끊어진다.

해당 선을 선택하면

참고로 치수선을 선택한 이후에는 명령을 끝낼 때까지 계속 개체를 선택해서 끊을 수 있다.
문자까지 선택해서 끊어주면 깔끔하다.

이렇게 치수선을 끊어서 도면을 깔끔하게 정리할 수 있다.
'- Program > AutoCAD' 카테고리의 다른 글
| AutoCAD ) 도면 치수 기입_드릴 지그 (0) | 2021.07.16 |
|---|---|
| AutoCAD ) 끼워맞춤_래크와 피니언 (0) | 2021.06.16 |
| AutoCAD ) 공차 기입_래크와 피니언 (0) | 2021.06.12 |
| AutoCAD ) 도면 치수 기입_래크와 피니언 (0) | 2021.06.03 |
| AutoCAD ) 표면 거칠기 입력_동력전달장치1 (0) | 2021.05.03 |
댓글