지난번 작성한 도면에 공차를 기입하였다.
전체적인 공차는 it5급을 기준으로 작성하였다.

우선 중심거리 허용차부터 보도록 하자.
본체에 두 축이 존재할 때 중심거리 허용차를 줄 수 있다.
규격집에서 중심거리 허용차 2급과 두 축 사이의 거리를 통해 ±0.02 의 공차를 주었다.

본체의 해당 면을 데이텀 A 로 기준을 잡고 기하 공차를 입력한다.


A와 축은 수직 관계이므로 직각도를 선택한다. 면과 축을 설정할 때는 공차 앞에 'Φ' 를 입력해준다.

이 면은 A와 평행 관계이므로 평행도를 선택한다. 면과 면 관계이므로 공차는 숫자만 입력하면 된다.
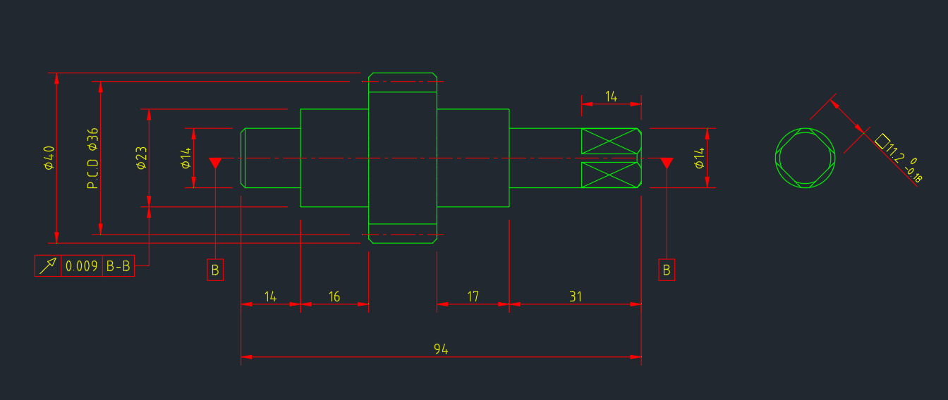
다음은 피니언.

생크 부분을 먼저 확인해보자.규격집에 생크 크기와 길이, 공차가 나와있으니 그대로 작성하면 된다.

정사각형 모양으로 잘랐기 때문에 치수 앞에 □ 을 붙여준다. 정사각형임을 알려주는 기호다.
ㅁ+'한자' 키를 눌러서 해당 모양을 찾아 입력하면 된다.
공차는 스택 기능을 이용해야 한다.

위 아래 공차 사이에 '^' 를 입력한다. 이후 공차에 해당하는 부분을 드래그하여 우클릭하면 스택 기능을 찾을 수 있다.
사진에 있는 빨간 부분을 눌러도 스택이 가능하다. 버튼을 누르게 되면 스택되어 나타난다.
치수랑 크기 차이를 주기 위해 공차 부분은 글씨 크기를 2 로 주어서 작성하면 다음과 같이 나온다.


축 형상은 축을 데이텀 기준으로 잡고 원주 흔들림도나 원통도를 많이 사용하는 편이다. 여기서는 흔들림도로 작성했다.
다음은 래크.


데이텀 C 를 기준으로 면을 규제, 데이텀과 평행 관계이므로 평행도로 공차를 작성하였다.

원통도는 따로 데이텀(기준)이 필요한게 아니라서 데이텀은 빠져있다.

번외로, 이 부분의 치수선은 반만 작성되어있다. 래크가 완전한 원형이 아니라 윗면이 컷팅되어있어 치수는 반만 표시해준다.
마지막 누름쇠

데이텀 D 를 기준으로 평행도와 직각도를 각각 입력해주었다.
모두 면과 면 규제이므로 기호 없이 입력해주었다.
이렇게 모든 부품의 공차를 입력해보았다. 다음에는 끼워맞춤을 작성하도록 하겠다.
'- Program > AutoCAD' 카테고리의 다른 글
| AutoCAD ) 표면거칠기_래크와 피니언 (0) | 2021.06.22 |
|---|---|
| AutoCAD ) 끼워맞춤_래크와 피니언 (0) | 2021.06.16 |
| AutoCAD ) 도면 치수 기입_래크와 피니언 (0) | 2021.06.03 |
| AutoCAD ) 표면 거칠기 입력_동력전달장치1 (0) | 2021.05.03 |
| AutoCAD ) 끼워맞춤_동력전달장치1 (0) | 2021.04.29 |
댓글